この物件は会員専用です
戸越公園駅 2分
その他居抜き
| 住所 | 品川区戸越5丁目 | |
|---|---|---|
| 沿線・駅 | 東急大井町線/戸越公園駅 | 2分 |
| 賃料(坪単価) | 330,000円(@14,654円) | |
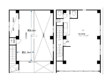
| 広さ/階数 | 74.44m²/22.51坪/ 2F | |
| 保証金・敷金 | 2ヶ月 | |
| 造作価格 | ||
| 物件NO. | 11513128291 | |
戸越公園 2階 事務所 居抜き 四間通り 飲食不可 クリニック サービス 店舗戸越公園駅より徒歩2分、四間通り沿いから2階店舗物件のご紹介です。現況事務所仕様での引渡しとなります。飲食不可。その他クリニックやサービス店舗などご相談可能!お問い合わせお待ちしております。 |
||
| 情報登録日 | 2025年10月24日 |
|---|---|
| 次回更新予定日 | 2025年10月30日 |
■こんな物件もあります!(条件に近い物件)
■こんな探し方もあります!
■このエリアの資金調達サポート企業
> 高橋会計事務所









