この物件は会員専用です
吉祥寺駅 9分
その他居抜き
| 住所 | 武蔵野市吉祥寺本町3丁目 | |
|---|---|---|
| 沿線・駅 |
JR中央本線/吉祥寺駅
JR中央線/吉祥寺駅 |
9分
9分 |
| 賃料(坪単価) | 1,595,000円(@13,362円) | |
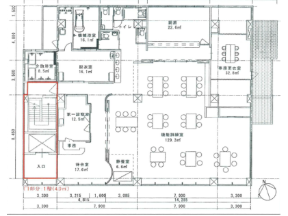
| 広さ/階数 | 394.59m²/119.36坪/ 2F | |
| 保証金・敷金 | 6ヶ月 | |
| 造作価格 | ||
| 物件NO. | 11513129406 | |
吉祥寺 井の頭通り 2階 デイサービス 居抜き 店舗 物件吉祥寺駅徒歩9分、井の頭通り沿いで2階居抜き物件出ました!前テナントはデイサービスです。同業態でしたら早期出店可能です。まずはお気軽にお問い合わせくださいませ! |
||
| 情報登録日 | 2026年01月06日 |
|---|---|
| 次回更新予定日 | 2026年01月12日 |
■こんな物件もあります!(条件に近い物件)
■こんな探し方もあります!
■このエリアの資金調達サポート企業
> 高橋会計事務所









