この物件は会員専用です
笹塚駅 4分
その他居抜き
| 住所 | 渋谷区笹塚1丁目 | |
|---|---|---|
| 沿線・駅 | 京王線/笹塚駅 | 4分 |
| 賃料(坪単価) | 451,000円(@31,782円) | |
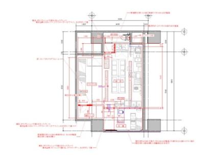
| 広さ/階数 | 46.91m²/14.19坪/ 1F | |
| 保証金・敷金 | 10ヶ月 | |
| 造作価格 | ||
| 物件NO. | 11513129811 | |
笹塚 徒歩3分 甲州街道 1階 セントラルキッチン 居抜き 物件 店舗 造作無償 重飲食可笹塚駅から徒歩4分!1階路面部分!セントラル物件の居抜き物件が甲州街道付近に出ました!重飲食可。造作無償。残置設備が少ない分、レイアウトの自由度が高い物件です。周辺には地元住民や一人暮らしなどが多数いる人気のエリアです。お問合せお待ちしております。 |
||
| 情報登録日 | 2026年01月28日 |
|---|---|
| 次回更新予定日 | 2026年02月03日 |
■こんな物件もあります!(条件に近い物件)
■こんな探し方もあります!
■このエリアの資金調達サポート企業
> 高橋会計事務所









