この物件は会員専用です
東日本橋駅 4分
その他居抜き
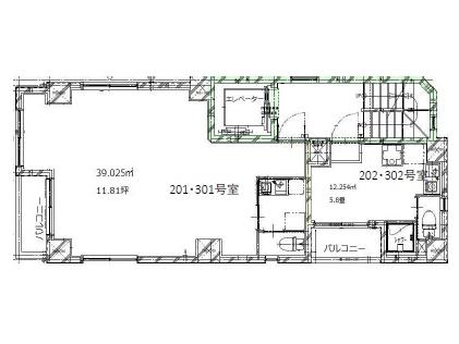
| 住所 | 中央区日本橋富沢町 | |
|---|---|---|
| 沿線・駅 | 都営浅草線/東日本橋駅 | 4分 |
| 賃料(坪単価) | 198,000円(@16,774円) | |
| 広さ/階数 | 39.02m²/11.80坪/ 2F | |
| 保証金・敷金 | 6ヶ月 | |
| 造作価格 | ||
| 物件NO. | 11513130331 | |
東日本橋 2階 事務所仕様 みどり通り 飲食不可 その他 スクール サービス 店舗東日本橋駅より徒歩2分、2階店舗物件のご紹介です。現況事務所仕様での引渡しとなります。飲食不可。その他スクールやサービス店舗などご相談可能!お問い合わせお待ちしております。 |
||
| 情報登録日 | 2026年03月02日 |
|---|---|
| 次回更新予定日 | 2026年03月08日 |
■こんな物件もあります!(条件に近い物件)
■こんな探し方もあります!
> 中央区
■このエリアの資金調達サポート企業
> 高橋会計事務所









