この物件は会員専用です
池袋駅 1分
その他居抜き
| 住所 | 豊島区西池袋1丁目 | |
|---|---|---|
| 沿線・駅 |
JR山手線/池袋駅
東京メトロ副都心線/池袋駅 東京メトロ有楽町線/池袋駅 |
1分
1分 1分 |
| 賃料(坪単価) | 922,691円(@25,294円) | |
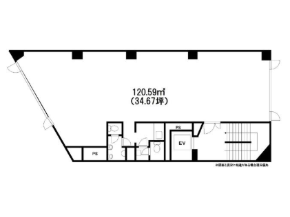
| 広さ/階数 | 120.59m²/36.47坪/ 3F | |
| 保証金・敷金 | 6ヶ月 | |
| 造作価格 | ||
| 物件NO. | 11513130364 | |
池袋 西口 テナント サービス 物販 物件 小箱池袋駅西口1分、ロータリー目の前の立地から、3階店舗物件出ました!各種物販店やサービス業に最適です。まずはお気軽にお問い合わせくださいませ! |
||
| 情報登録日 | 2026年03月03日 |
|---|---|
| 次回更新予定日 | 2026年03月09日 |
■こんな物件もあります!(条件に近い物件)
■こんな探し方もあります!
■このエリアの資金調達サポート企業
> 高橋会計事務所









