この物件は会員専用です
新宿三丁目駅 2分
スケルトン
| 住所 | 新宿区新宿3丁目 | |
|---|---|---|
| 沿線・駅 | 東京メトロ副都心線/新宿三丁目駅 | 2分 |
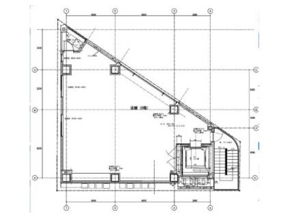
| 賃料(坪単価) | 825,000円(@27,464円) | |
| 広さ/階数 | 99.3m²/30.03坪/ 9F | |
| 保証金・敷金 | 12ヶ月 | |
| 造作価格 | ||
| 物件NO. | 11513127920 | |
新宿三丁目 9階 スケルトン 明治通り 飲食不可 クリニック サービス 店舗新宿三丁目駅より徒歩2分、明治通り沿いから9階店舗物件のご紹介です。現況スケルトンでの引渡しとなります。飲食不可。その他クリニックやサービス店舗などご相談可能!お問い合わせお待ちしております。 |
||
| 情報登録日 | 2025年10月06日 |
|---|---|
| 次回更新予定日 | 2026年05月15日 |
■こんな物件もあります!(条件に近い物件)
■こんな探し方もあります!
■このエリアの資金調達サポート企業
> 高橋会計事務所









