この物件は会員専用です
巣鴨駅 5分
ラーメン居抜き
| 住所 | 文京区本駒込6丁目 | |
|---|---|---|
| 沿線・駅 |
JR山手線/巣鴨駅
都営三田線/巣鴨駅 |
5分
5分 |
| 賃料(坪単価) | 297,000円(@40,404円) | |
| 広さ/階数 | 24.3m²/7.35坪/ 1F | |
| 保証金・敷金 | 10ヶ月 | |
| 造作価格 | ||
| 物件NO. | 11513128442 | |
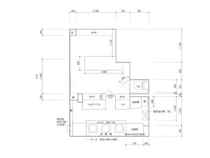
巣鴨 徒歩5分 1階路面 ラーメン 居抜き 業態制限なし 店舗 テナント巣鴨駅から徒歩5分!白山通り沿いに1階路面ラーメン店の居抜き物件出ました。厨房機器が残った状態での引き渡しですので同業態であればすぐにでも出店が可能です。また業態制限がないので、幅広い業態の方にお勧めです!まずはお気軽にお問い合わせください。 |
||
| 情報登録日 | 2025年11月05日 |
|---|---|
| 次回更新予定日 | 2025年11月11日 |
■こんな物件もあります!(条件に近い物件)









