この物件は会員専用です
綱島駅 1分
スケルトン
| 住所 | 横浜市港北区綱島西1丁目 | |
|---|---|---|
| 沿線・駅 | 東急東横線/綱島駅 | 1分 |
| 賃料(坪単価) | 606,800円(@16,578円) | |
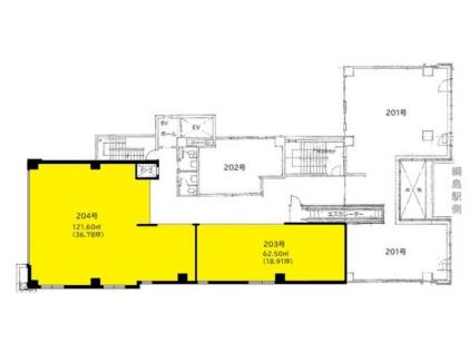
| 広さ/階数 | 121m²/36.60坪/ 2F | |
| 保証金・敷金 | 10ヶ月 | |
| 造作価格 | ||
| 物件NO. | 11513128687 | |
綱島 2階 スケルトン 商店街沿い 飲食不可 店舗 物件綱島駅西口より徒歩1分、商店街沿いにある店舗物件のご紹介です。商店街、テナント内に店舗がございますので集客などの期待が出来ます。飲食不可ですが、物販やサービス店舗などにいかがでしょうか?お問い合わせお待ちしております。 |
||
| 情報登録日 | 2025年11月17日 |
|---|---|
| 次回更新予定日 | 2026年04月27日 |
■こんな物件もあります!(条件に近い物件)
■こんな探し方もあります!
> 綱島









