この物件は会員専用です
北品川駅 7分
その他居抜き
| 住所 | 品川区東品川1丁目 | |
|---|---|---|
| 沿線・駅 | 京急本線/北品川駅 | 7分 |
| 賃料(坪単価) | 212,300円(@13,774円) | |
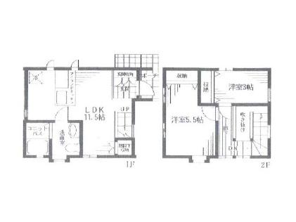
| 広さ/階数 | 50.95m²/15.41坪/ 1F~2F | |
| 保証金・敷金 | 3ヶ月 | |
| 造作価格 | ||
| 物件NO. | 11513129908 | |
北品川 一括 住居仕様 八ツ山通り 飲食不可 スクール サービス 店舗北品川駅より徒歩7分、八ツ山通り沿いから一括貸店舗物件のご紹介です。現況住居仕様での引渡しとなります。飲食不可。その他スクールやサービス店舗などご相談可能!お問い合わせお待ちしております。 |
||
| 情報登録日 | 2026年02月02日 |
|---|---|
| 次回更新予定日 | 2026年05月09日 |
■こんな物件もあります!(条件に近い物件)
■こんな探し方もあります!
■このエリアの資金調達サポート企業
> 高橋会計事務所









