この物件は会員専用です
田端駅 11分
スケルトン
| 住所 | 文京区本駒込4丁目 | |
|---|---|---|
| 沿線・駅 |
JR山手線/田端駅
東京メトロ南北線/本駒込駅 |
11分
11分 |
| 賃料(坪単価) | 400,000円(@17,907円) | |
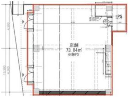
| 広さ/階数 | 73.84m²/22.33坪/ 1F | |
| 保証金・敷金 | 6ヶ月 | |
| 造作価格 | ||
| 物件NO. | 11513129954 | |
田端 1階 スケルトン 軽飲食 クリニック サービス 店舗田端駅より徒歩11分、1階店舗物件のご紹介です。現況スケルトンでの引き渡しとなります。軽飲食可。その他クリニックやサービス店舗などご相談可能!お問い合わせお待ちしております。 |
||
| 情報登録日 | 2026年02月05日 |
|---|---|
| 次回更新予定日 | 2026年05月22日 |
■こんな物件もあります!(条件に近い物件)
■こんな探し方もあります!
> 文京区









