この物件は会員専用です
御成門駅 5分
その他居抜き
| 住所 | 港区新橋6丁目 | |
|---|---|---|
| 沿線・駅 |
都営三田線/御成門駅
JR山手線/新橋駅 |
5分
9分 |
| 賃料(坪単価) | 975,282円(@15,399円) | |
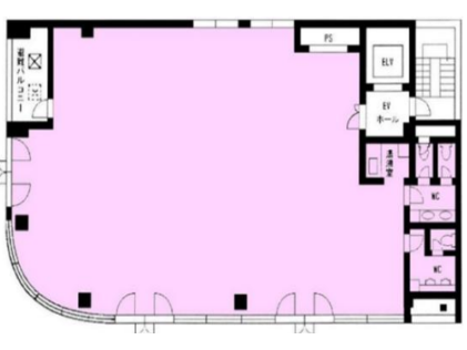
| 広さ/階数 | 209.36m²/63.33坪/ 4F | |
| 保証金・敷金 | なし | |
| 造作価格 | ||
| 物件NO. | 11513129956 | |
新橋 9分 4階 事務所仕様居抜き 店舗 飲食店不可 サービス御成門駅徒歩5分の立地から、事務所仕様居抜き物件のご紹介です。飲食業は不可ですが、サービス業態であれば店舗利用可能でございます。周辺はオフィス街となっております。お問い合わせお待ちしております。 |
||
| 情報登録日 | 2026年02月05日 |
|---|---|
| 次回更新予定日 | 2026年04月22日 |
■こんな物件もあります!(条件に近い物件)
■こんな探し方もあります!
■このエリアの資金調達サポート企業
> 高橋会計事務所









