この物件は会員専用です
経堂駅 12分
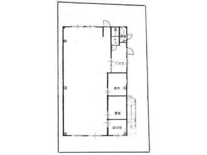
スケルトン
| 住所 | 世田谷区経堂1丁目 | |
|---|---|---|
| 沿線・駅 | 小田急小田原線/経堂駅 | 12分 |
| 賃料(坪単価) | 385,000円(@13,759円) | |
| 広さ/階数 | 92.5m²/27.98坪/ 1F | |
| 保証金・敷金 | 10ヶ月 | |
| 造作価格 | ||
| 物件NO. | 11513130093 | |
経堂 徒歩12分 1階 スケルトン サービス サロン 物販経堂エリアの物件ご紹介いたします。駅から徒歩12分にある1階の物件です。現況スケルトンでの引き渡しとなります。住宅街に位置しているため、地域住民の集客が見込める物件となります。お問い合わせお待ちしております。 |
||
| 情報登録日 | 2026年02月13日 |
|---|---|
| 次回更新予定日 | 2026年05月30日 |
■こんな物件もあります!(条件に近い物件)
■こんな探し方もあります!
■このエリアの資金調達サポート企業
> 高橋会計事務所









