この物件は成約済みです
代々木八幡 3分
| 住所 | 渋谷区元代々木町 | |
|---|---|---|
| 沿線・駅 |
小田急小田原線/代々木八幡
東京メトロ千代田線/代々木公園 |
3分
4分 |
| 賃料(坪単価) | 27万円(@3.7万円) | |
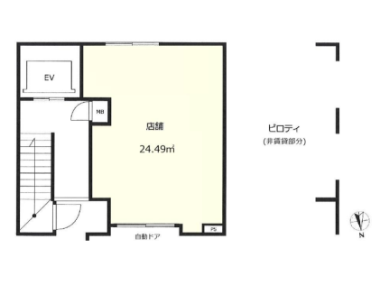
| 広さ/階数 | 24m²/7坪/ 1F | |
| 保証金・敷金 | 5ヶ月 | |
| 造作価格 | スケルトン | |
元代々木町 代々木八幡 1階 路面店 新築 スケルトン代々木八幡駅徒歩3分の立地から、1階路面新築スケルトン物件のご紹介です。2026年4月末竣工予定の物件になりまして、業態ご相談となっております。代々木公園からもアクセス可能。お問い合わせお待ちしております。 |
||

