この物件は会員専用です
明治神宮前駅 3分
スケルトン
| 住所 | 渋谷区神宮前1丁目 | |
|---|---|---|
| 沿線・駅 |
東京メトロ副都心線/明治神宮前駅
JR山手線/原宿駅 |
3分
5分 |
| 賃料(坪単価) | 2,178,000円(@52,991円) | |
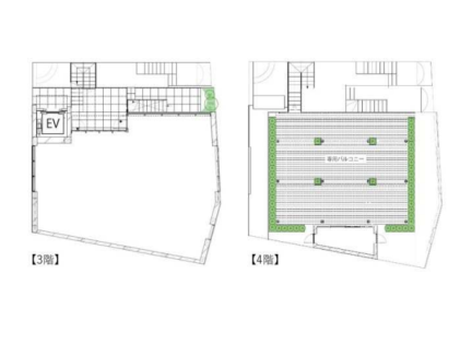
| 広さ/階数 | 135.87m²/41.10坪/ 3F~4F | |
| 保証金・敷金 | ASK | |
| 造作価格 | ||
| 物件NO. | 11513130293 | |
明治神宮前 新築 3階4階 バルコニー スケルトン サービス 物件 テナント明治神宮前駅徒歩3分の立地から、3階4階スケルトン物件のご紹介です。2025年7月竣工の建物になりまして、屋上バルコニーも利用可能な物件でございます。業態制限未確認となりますので、まずはご相談下さいませ。お問い合わせお待ちしております。 |
||
| 情報登録日 | 2026年02月26日 |
|---|---|
| 次回更新予定日 | 2026年04月18日 |
■こんな物件もあります!(条件に近い物件)
■こんな探し方もあります!
■このエリアの資金調達サポート企業
> 高橋会計事務所









