この物件は会員専用です
関内駅 6分
その他居抜き
| 住所 | 横浜市中区吉田町 | |
|---|---|---|
| 沿線・駅 |
横浜市営地下鉄ブルーライン/関内駅
横浜市営地下鉄ブルーライン/桜木町駅 |
6分
7分 |
| 賃料(坪単価) | 145,000円(@8,906円) | |
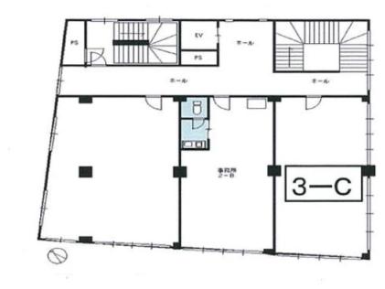
| 広さ/階数 | 53.82m²/16.28坪/ 3F | |
| 保証金・敷金 | 3ヶ月 | |
| 造作価格 | ||
| 物件NO. | 11513130465 | |
関内 3階 事務所仕様 吉田町通り サービス 店舗 物件関内駅より徒歩6分、吉田町通り沿いの3階店舗のご紹介となります。現況事務所仕様での引き渡しです。低賃料のため営業所などにおすすめとなります。お問い合わせお待ちしております。 |
||
| 情報登録日 | 2026年03月06日 |
|---|---|
| 次回更新予定日 | 2026年04月26日 |
■こんな物件もあります!(条件に近い物件)
■こんな探し方もあります!
> 関内









