この物件は会員専用です
蔵前駅 3分
スケルトン
| 住所 | 台東区蔵前4丁目 | |
|---|---|---|
| 沿線・駅 |
都営浅草線/蔵前駅
都営大江戸線/蔵前駅 都営浅草線/浅草橋駅 |
3分
6分 11分 |
| 賃料(坪単価) | 1,167,320円(@38,496円) | |
| 広さ/階数 | 100.24m²/30.32坪/ 1F | |
| 保証金・敷金 | 6ヶ月 | |
| 造作価格 | ||
| 物件NO. | 11513131014 | |
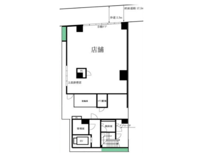
蔵前 浅草橋 春日通り 物件 1階 店舗 スケルトン蔵前駅徒歩3分の立地から、1階路面スケルトン物件のご紹介です。春日通りに面した建物になりまして、現在保育園が入居されております。上階が住居の為、重飲食不可です。まずは業態ご相談下さい。お問い合わせお待ちしております。 |
||
| 情報登録日 | 2026年04月08日 |
|---|---|
| 次回更新予定日 | 2026年05月29日 |
■こんな物件もあります!(条件に近い物件)
■こんな探し方もあります!
> 台東区









