この物件は会員専用です
北千住駅 4分
スケルトン
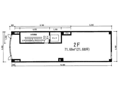
| 住所 | 足立区千住3丁目 | |
|---|---|---|
| 沿線・駅 | 東京メトロ千代田線/北千住駅 | 4分 |
| 賃料(坪単価) | 473,000円(@21,811円) | |
| 広さ/階数 | 71.69m²/21.68坪/ 2F | |
| 保証金・敷金 | 2,800,000円 | |
| 造作価格 | ||
| 物件NO. | 11513131137 | |
北千住 2階 スケルトン 飲食不可 その他 クリニック サービス 店舗北千住駅より徒歩4分、旧日光街道沿いから2階店舗物件のご紹介です。現況スケルトンでの引渡しとなります。飲食不可。その他クリニックやサービス店舗などご相談可能!お問い合わせお待ちしております。 |
||
| 情報登録日 | 2026年04月14日 |
|---|---|
| 次回更新予定日 | 2026年04月20日 |
■こんな物件もあります!(条件に近い物件)









