奥沢の居抜き物件や店舗情報をご紹介
奥沢の居抜き物件・スケルトン物件をご紹介。奥沢駅の店舗は居抜き本舗にお任せ!奥沢の飲食店舗物件情報を随時掲載しております
焼き鳥居抜き 

|
世田谷区奥沢4丁目 |
|
駅 奥沢 2分
|
|
賃料 27.5万 坪1.91万
|
|
面積 47.66m²/14.41坪
|
|
奥沢エリアの物件ご紹介い...[居酒屋, 和食・寿司, 焼き鳥, 鉄板...
|
|
|
|
|
目黒区自由が丘2丁目 |
|
駅 自由が丘 4分
|
|
賃料 589.8万 坪4.95万
|
|
面積 393.91m²/119.15坪
|
|
自由が丘駅より徒歩4分、学園通り沿いから一括貸店舗物件のご紹介です。現...
|
|
|
|
|
世田谷区奥沢4丁目 |
|
駅 奥沢 1分
|
|
賃料 25万 坪2.07万
|
|
面積 39.9m²/12.06坪
|
|
奥沢エリア物件出ました!駅から徒歩1分にある2階の物件です。現況スケル...
|
|
|
ラーメン居抜き 

|
世田谷区奥沢5丁目 |
|
駅 奥沢 2分
|
|
賃料 38.5万 坪5.62万
|
|
面積 22.63m²/6.84坪
|
|
奥沢エリアの物件ご紹介い...[居酒屋, 和食・寿司, 焼き鳥, 鉄板...
|
|
|
|
|
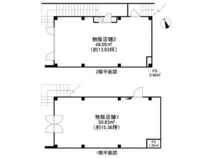
世田谷区奥沢5丁目 |
|
駅 奥沢 6分
|
|
賃料 50.8万 坪3.3万
|
|
面積 50.85m²/15.38坪
|
|
奥沢駅より徒歩6分、学園通り沿いから1階店舗物件のご紹介です。現況スケ...
|
|
|
その他居抜き 

|
世田谷区奥沢2丁目 |
|
駅 緑が丘 6分
|
|
賃料 13.8万 坪1.06万
|
|
面積 42.85m²/12.96坪
|
|
緑が丘エリアの物件ご紹介いたします。駅から徒歩6分にある2階の物件です...
|
|
|
その他居抜き 

|
世田谷区奥沢3丁目 |
|
駅 奥沢 1分
|
|
賃料 32.8万 坪1.98万
|
|
面積 54.84m²/16.58坪
|
|
奥沢エリアの物件ご紹介いたします。駅から徒歩1分にある2階の物件です。...
|
|
|
|
|
世田谷区奥沢5丁目 |
|
駅 奥沢 6分
|
|
賃料 92.1万 坪3.14万
|
|
面積 96.9m²/29.31坪
|
|
奥沢駅より徒歩6分、学園通り沿いから一棟貸店舗物件のご紹介です。202...
|
|
|
その他居抜き 

|
世田谷区奥沢2丁目 |
|
駅 奥沢 5分
|
|
賃料 24.9万 坪2.24万
|
|
面積 36.73m²/11.11坪
|
|
奥沢エリアの物件ご紹介いたします。駅から徒歩5分にある1階の物件です。...
|
|
|
9件中
1~9件を表示中