日本橋の居抜き物件や店舗情報をご紹介
日本橋の居抜き物件・スケルトン物件をご紹介。日本橋駅周辺の店舗は居抜き本舗にお任せ!日本橋の飲食店舗物件情報を随時掲載しております
検索条件>>
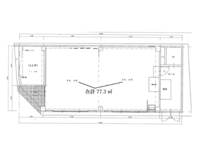
| 中央区東日本橋3丁目 | |
| 駅 東日本橋 1分 | |
| 賃料 36.1万 坪1.72万 | |
| 面積 69.45m²/21坪 | |
| 東日本橋エリアの物件ご紹介いたします。駅から...[居酒屋, 和食・寿... | |
| 中央区日本橋浜町1丁目 | |
| 駅 浜町 3分 | |
| 賃料 60.5万 坪2.26万 | |
| 面積 88.6m²/26.8坪 | |
| 浜町駅より徒歩3分、1階店舗物件のご紹介です。事務所仕様居抜きでのお引... | |
| 中央区日本橋本町4丁目 | |
| 駅 新日本橋 2分 | |
| 賃料 39.6万 坪2.72万 | |
| 面積 48.16m²/14.56坪 | |
| 新日本橋駅より徒歩2分、1階貸店舗物件のご...[居酒屋, 和食・寿司... | |
| 中央区日本橋本町4丁目 | |
| 駅 新日本橋 2分 | |
| 賃料 29.7万 坪1.15万 | |
| 面積 85.12m²/25.74坪 | |
| 新日本橋駅より徒歩2分、一括貸店舗物件のご...[居酒屋, 和食・寿司... | |
| 中央区日本橋本町4丁目 | |
| 駅 新日本橋 2分 | |
| 賃料 66万 坪1.64万 | |
| 面積 133.28m²/40.31坪 | |
| 新日本橋駅より徒歩2分!一括貸店舗物件のご...[居酒屋, 和食・寿司... | |
| 中央区東日本橋2丁目 | |
| 駅 馬喰町 3分 | |
| 賃料 16.5万 坪1.5万 | |
| 面積 36.36m²/10.99坪 | |
| 馬喰町駅より徒歩3分、1階店舗物件のご紹介です。現況スケルトンでの引渡... | |
| 中央区日本橋人形町2丁目 | |
| 駅 人形町 2分 | |
| 賃料 34.1万 坪2.42万 | |
| 面積 46.54m²/14.07坪 | |
| 人形町駅から徒歩2分にある1階の物件です。現況クリニック居抜きでの引き... | |
| 中央区日本橋人形町1丁目 | |
| 駅 水天宮前 2分 | |
| 賃料 81.4万 坪3.1万 | |
| 面積 86.7m²/26.22坪 | |
| 水天宮前駅から徒歩2分!水天宮前交差点から至近、新大橋通り沿いの...... | |
| 中央区日本橋馬喰町1丁目 | |
| 駅 馬喰町 3分 | |
| 賃料 50.6万 坪2.56万 | |
| 面積 65.2m²/19.72坪 | |
| 馬喰町駅より徒歩3分の好立地から1階居酒屋居抜き物件出ました!居抜き物... | |
| 中央区日本橋小網町 | |
| 駅 人形町 4分 | |
| 賃料 30.3万 坪1.76万 | |
| 面積 56.9m²/17.21坪 | |
| 人形町駅徒歩4分の立地から、6階事務所仕様居抜き物件のご紹介です。各種... | |
| 中央区日本橋蛎殻町1丁目 | |
| 駅 人形町 5分 | |
| 賃料 26.7万 坪1.43万 | |
| 面積 61.78m²/18.68坪 | |
| 人形町駅より徒歩5分、1階店舗物件のご紹介です。現況事務所仕様での引渡... | |
| 中央区日本橋本町4丁目 | |
| 駅 新日本橋 3分 | |
| 賃料 35.9万 坪1.76万 | |
| 面積 67.35m²/20.37坪 | |
| 新日本橋エリアの物件ご紹介いたします。駅から徒歩3分にある地下1階の物... | |
| 中央区日本橋大伝馬町 | |
| 駅 小伝馬町 2分 | |
| 賃料 40.7万 坪4.44万 | |
| 面積 30.29m²/9.16坪 | |
| 小伝馬町駅徒歩2分の立地から、焼肉居抜き物件が出ました!2階店舗になり... | |
| 中央区日本橋馬喰町1丁目 | |
| 駅 馬喰町 1分 | |
| 賃料 24.2万 坪3.81万 | |
| 面積 21m²/6.35坪 | |
| 馬喰町駅より徒歩1分、江戸通り沿いから1階店舗物件のご紹介です。現況事... | |
| 中央区日本橋人形町3丁目 | |
| 駅 人形町 1分 | |
| 賃料 18.7万 坪0.95万 | |
| 面積 64.8m²/19.6坪 | |
| 人形町駅より徒歩1分、2階-3階一括貸店舗物件のご紹介です。現況住居仕... | |
| 中央区日本橋人形町3丁目 | |
| 駅 人形町 4分 | |
| 賃料 16.5万 坪0.94万 | |
| 面積 58m²/17.54坪 | |
| 人形町エリアの物件ご紹介いたします。駅から徒歩4分にある1-2階一括貸... | |
| 中央区日本橋本石町4丁目 | |
| 駅 神田 4分 | |
| 賃料 39.6万 坪3.3万 | |
| 面積 39.69m²/12坪 | |
| 神田エリアの物件ご紹介いたします。駅から徒歩4分にある1階の物件です。... | |
| 中央区日本橋本町4丁目 | |
| 駅 神田 5分 | |
| 賃料 81.4万 坪2.45万 | |
| 面積 109.68m²/33.17坪 | |
| 神田エリアの物件ご紹介いたします。駅から徒歩5分にある地下1階の...... | |
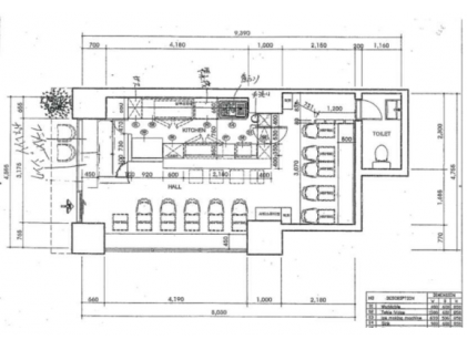
| 中央区八重洲1丁目 | |
| 駅 東京 3分 | |
| 賃料 813.3万 坪11.88万 | |
| 面積 226.33m²/68.46坪 | |
| 東京駅八重洲口徒歩3分、駅至近の1階路面部分に大箱新築スケルトン物件出... | |
| 中央区日本橋蛎殻町2丁目 | |
| 駅 水天宮前 4分 | |
| 賃料 25.3万 坪1.45万 | |
| 面積 57.8m²/17.48坪 | |
| 水天宮前駅より徒歩4分、2階店舗物件のご紹介です。現況事務所仕様での引... | |
| 中央区日本橋浜町2丁目 | |
| 駅 水天宮前 4分 | |
| 賃料 20.9万 坪6.91万 | |
| 面積 10m²/3.02坪 | |
| 水天宮前エリアの物件ご紹介いたします。駅から徒歩4分にある2階区画の物... | |
| 中央区日本橋横山町 | |
| 駅 馬喰町 2分 | |
| 賃料 37.4万 坪2.17万 | |
| 面積 56.93m²/17.22坪 | |
| 馬喰町エリアの物件ご紹介いたします。駅から徒歩2分にある1階の物件です... | |
| 台東区柳橋1丁目 | |
| 駅 浅草橋 1分 | |
| 賃料 68.8万 坪1.52万 | |
| 面積 149.11m²/45.1坪 | |
| 2路線利用可能な浅草橋駅から徒歩1分の貸店舗物件のご紹介です。2階飲食... | |
| 中央区日本橋小伝馬町 | |
| 駅 小伝馬町 1分 | |
| 賃料 14.3万 坪2.04万 | |
| 面積 23.14m²/6.99坪 | |
| 小伝馬町駅より徒歩1分、人形町通り沿いから2階店舗物件のご紹介です。現... | |
| 台東区柳橋1丁目 | |
| 駅 浅草橋 1分 | |
| 賃料 68.8万 坪1.52万 | |
| 面積 149.11m²/45.1坪 | |
| 浅草橋エリアの物件ご紹介いたします。駅から徒歩1分にある地下1階の物件... | |






















































