この物件は会員専用です
武蔵小山駅 3分
その他居抜き
| 住所 | 品川区小山3丁目 | |
|---|---|---|
| 沿線・駅 | 東急目黒線/武蔵小山駅 | 3分 |
| 賃料(坪単価) | 652,872円(@26,397円) | |
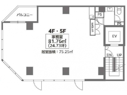
| 広さ/階数 | 81.76m²/24.73坪/ 4F | |
| 保証金・敷金 | 8ヶ月 | |
| 造作価格 | ||
| 物件NO. | 11513128731 | |
武蔵小山 事務所 居抜き 商店街 飲食不可 クリニック サービス 店舗武蔵小山駅より徒歩3分、商店街沿いから4階店舗物件のご紹介です。現況事務所仕様での引渡しとなります。飲食不可。その他クリニックやサービス店舗などご相談可能!お問い合わせお待ちしております。 |
||
| 情報登録日 | 2025年11月19日 |
|---|---|
| 次回更新予定日 | 2025年11月25日 |
■こんな物件もあります!(条件に近い物件)
■こんな探し方もあります!
■このエリアの資金調達サポート企業
> 高橋会計事務所









