この物件は会員専用です
神田駅 1分
スケルトン
| 住所 | 千代田区神田須田町1丁目 | |
|---|---|---|
| 沿線・駅 | 東京メトロ銀座線/神田駅 | 1分 |
| 賃料(坪単価) | 1,236,763円(@31,901円) | |
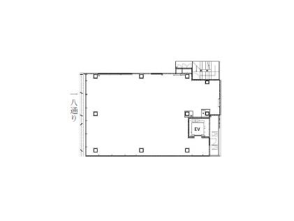
| 広さ/階数 | 128.16m²/38.76坪/ 5F | |
| 保証金・敷金 | 10ヶ月 | |
| 造作価格 | ||
| 物件NO. | 11513128951 | |
神田 徒歩1分 5階 新築 スケルトン 飲食 サービス 物販神田エリアの物件ご紹介いたします。駅から徒歩1分にある4階の物件です。新築スケルトンでの引渡しとなります。周辺にはオフィスが多数あり、飲食需要の高い物件となります。お問い合わせお待ちしております。 |
||
| 情報登録日 | 2026年01月06日 |
|---|---|
| 次回更新予定日 | 2026年05月02日 |
■こんな物件もあります!(条件に近い物件)
■こんな探し方もあります!
■このエリアの資金調達サポート企業
> 高橋会計事務所









