この物件は会員専用です
西新宿駅 2分
その他居抜き
| 住所 | 新宿区西新宿8丁目 | |
|---|---|---|
| 沿線・駅 | 東京メトロ丸ノ内線/西新宿駅 | 2分 |
| 賃料(坪単価) | 440,000円(@41,123円) | |
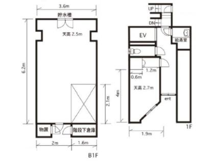
| 広さ/階数 | 35.37m²/10.69坪/ B1F~1F | |
| 保証金・敷金 | 8ヶ月 | |
| 造作価格 | ||
| 物件NO. | 11513129167 | |
西新宿 一括 事務所 居抜き 青梅街道 飲食不可 物販 サービス 店舗西新宿駅より徒歩2分、青梅街道沿いから地下1階-1階一括貸店舗物件のご紹介です。現況事務所仕様での引渡しとなります。飲食不可ですが、物販やサービス店舗などご相談可能!お問い合わせお待ちしております。 |
||
| 情報登録日 | 2025年12月16日 |
|---|---|
| 次回更新予定日 | 2026年03月21日 |
■こんな物件もあります!(条件に近い物件)
■こんな探し方もあります!
■このエリアの資金調達サポート企業
> 高橋会計事務所









