この物件は会員専用です
渋谷駅 5分
その他居抜き
| 住所 | 渋谷区渋谷1丁目 | |
|---|---|---|
| 沿線・駅 | JR山手線/渋谷駅 | 5分 |
| 賃料(坪単価) | 2,915,900円(@41,795円) | |
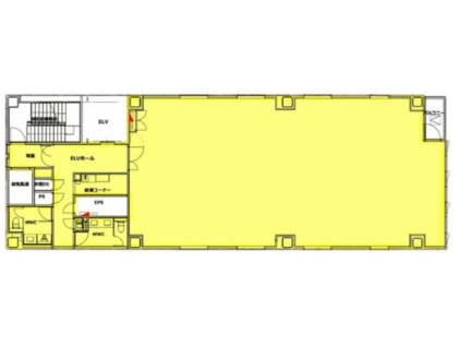
| 広さ/階数 | 230.63m²/69.76坪/ 3F | |
| 保証金・敷金 | 6ヶ月 | |
| 造作価格 | ||
| 物件NO. | 11513129653 | |
渋谷 5分 3階 新築 事務所仕様居抜き サービス 店舗 物件渋谷駅徒歩5分の立地から、新築物件のご紹介です。2025年11月竣工された物件になりまして、内装事務所仕様でのお引渡しとなっております。飲食店での使用は不可となりますので、各種サービス業態にいかがでしょうか?お問い合わせお待ちしております。 |
||
| 情報登録日 | 2026年01月19日 |
|---|---|
| 次回更新予定日 | 2026年05月10日 |
■こんな物件もあります!(条件に近い物件)
■このエリアの資金調達サポート企業
> 高橋会計事務所









