この物件は会員専用です
井荻駅 1分
スケルトン
| 住所 | 杉並区上井草1丁目 | |
|---|---|---|
| 沿線・駅 | 西武新宿線/井荻駅 | 1分 |
| 賃料(坪単価) | 259,050円(@16,840円) | |
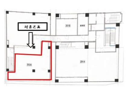
| 広さ/階数 | 50.85m²/15.38坪/ 2F | |
| 保証金・敷金 | 5ヶ月 | |
| 造作価格 | ||
| 物件NO. | 11513129726 | |
井荻 2階 スケルトン 環八通り 飲食不可 クリニック 物件井荻駅より徒歩1分、環八通り沿いの2階店舗物件のご紹介です。現況スケルトンでの引渡しとなります。サービス店や物販店相談可能でございます。ご興味ございましたら、お気軽にお問い合わせくださいませ。 |
||
| 情報登録日 | 2026年01月21日 |
|---|---|
| 次回更新予定日 | 2026年03月13日 |
■こんな物件もあります!(条件に近い物件)
■こんな探し方もあります!
■このエリアの資金調達サポート企業
> 高橋会計事務所









