この物件は会員専用です
東銀座駅 2分
その他居抜き
| 住所 | 中央区銀座3丁目 | |
|---|---|---|
| 沿線・駅 |
都営浅草線/東銀座駅
東京メトロ日比谷線/東銀座駅 東京メトロ銀座線/銀座駅 |
2分
3分 5分 |
| 賃料(坪単価) | 1,327,491円(@36,300円) | |
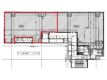
| 広さ/階数 | 120.89m²/36.56坪/ 3F | |
| 保証金・敷金 | 8ヶ月 | |
| 造作価格 | ||
| 物件NO. | 11513129938 | |
東銀座 徒歩2分 3階 新築 事務所仕様 歌舞伎座 飲食可東銀座駅徒歩2分の立地から、新築事務所仕様物件のご紹介です。2025年12月竣工の建物になりまして、歌舞伎座裏手の立地になります。お問い合わせお待ちしております。 |
||
| 情報登録日 | 2026年02月03日 |
|---|---|
| 次回更新予定日 | 2026年02月09日 |
■こんな物件もあります!(条件に近い物件)
■こんな探し方もあります!
■このエリアの資金調達サポート企業
> 高橋会計事務所









