この物件は会員専用です
渋谷駅 4分
スケルトン
| 住所 | 渋谷区神南1丁目 | |
|---|---|---|
| 沿線・駅 | JR山手線/渋谷駅 | 4分 |
| 賃料(坪単価) | 5,830,000円(@87,057円) | |
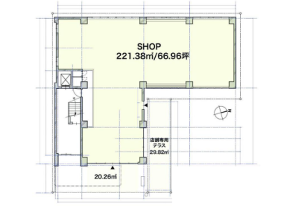
| 広さ/階数 | 221.38m²/66.96坪/ 1F | |
| 保証金・敷金 | 6ヶ月 | |
| 造作価格 | ||
| 物件NO. | 11513130205 | |
渋谷 神南 店舗 1階 路面 スケルトン 大箱 重飲食可 公園通り渋谷神南エリアから、200㎥超えの大箱物件が出ました!重飲食含め各種業態相談可になっております。1階路面店で専用テラス席も使用でき、視認性良好な物件でございます。2026年4月リニューアルオープンになります。お問い合わせお待ちしております。 |
||
| 情報登録日 | 2026年02月19日 |
|---|---|
| 次回更新予定日 | 2026年04月21日 |
■こんな物件もあります!(条件に近い物件)
■このエリアの資金調達サポート企業
> 高橋会計事務所









