この物件は会員専用です
新宿駅 10分
その他居抜き
| 住所 | 新宿区西新宿7丁目 | |
|---|---|---|
| 沿線・駅 |
JR山手線/新宿駅
都営大江戸線/新宿西口駅 JR総武線/大久保駅 |
10分
6分 5分 |
| 賃料(坪単価) | 344,080円(@17,596円) | |
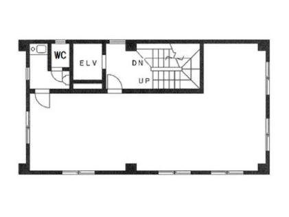
| 広さ/階数 | 64.64m²/19.55坪/ 3F | |
| 保証金・敷金 | 6ヶ月 | |
| 造作価格 | ||
| 物件NO. | 11513130236 | |
新宿 3階 事務所仕様 小滝橋通り 飲食不可 店舗 物件新宿駅より徒歩10分、小滝橋通り沿いの3階店舗事務所物件のご紹介です。現況事務所仕様での引渡しとなります。飲食不可ですが、スクールやサービス店舗などにいかがでしょうか?お問い合わせお待ちしております。 |
||
| 情報登録日 | 2026年05月19日 |
|---|---|
| 次回更新予定日 | 2026年05月30日 |
■こんな物件もあります!(条件に近い物件)
■このエリアの資金調達サポート企業
> 高橋会計事務所









