この物件は会員専用です
東高円寺駅 1分
その他居抜き
| 住所 | 杉並区高円寺南1丁目 | |
|---|---|---|
| 沿線・駅 | 東京メトロ丸ノ内線/東高円寺駅 | 1分 |
| 賃料(坪単価) | 275,000円(@8,235円) | |
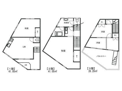
| 広さ/階数 | 110.39m²/33.39坪/ 1F~3F | |
| 保証金・敷金 | 5ヶ月 | |
| 造作価格 | ||
| 物件NO. | 11513130472 | |
東高円寺 徒歩1分 1-3階 その他 居抜き サービス サロン東高円寺エリアの物件ご紹介いたします。駅から徒歩1分、青梅街道沿いにある1-3階一括貸しの物件です。現況有姿での引き渡しとなります。角地のため視認性良好!サービス店舗、物販店舗におすすめとなります。お問い合わせお待ちしております。 |
||
| 情報登録日 | 2026年04月14日 |
|---|---|
| 次回更新予定日 | 2026年05月04日 |
■こんな物件もあります!(条件に近い物件)
■こんな探し方もあります!
■このエリアの資金調達サポート企業
> 高橋会計事務所









