この物件は会員専用です
青山一丁目駅 2分
その他居抜き
| 住所 | 港区南青山2丁目 | |
|---|---|---|
| 沿線・駅 | 東京メトロ銀座線/青山一丁目駅 | 2分 |
| 賃料(坪単価) | 948,288円(@26,391円) | |
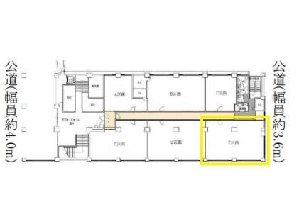
| 広さ/階数 | 118.78m²/35.93坪/ 2F | |
| 保証金・敷金 | 4ヶ月 | |
| 造作価格 | ||
| 物件NO. | 11513130595 | |
青山一丁目 外苑東通り 店舗 事務所仕様居抜き ビルイン 不動産青山一丁目駅徒歩2分の立地から、2階事務所仕様居抜き物件のご紹介です。駅からも近く、アクセス良好な物件となっております。事務所仕様ですので、各種サービス業態にいかがでしょうか?お問い合わせお待ちしております。 |
||
| 情報登録日 | 2026年04月03日 |
|---|---|
| 次回更新予定日 | 2026年05月03日 |
■こんな物件もあります!(条件に近い物件)
■こんな探し方もあります!
■このエリアの資金調達サポート企業
> 高橋会計事務所









