この物件は会員専用です
芝公園駅 3分
和食・寿司居抜き
| 住所 | 港区芝2丁目 | |
|---|---|---|
| 沿線・駅 |
都営三田線/芝公園駅
都営浅草線/三田駅 |
3分
9分 |
| 賃料(坪単価) | 162,800円(@17,194円) | |
| 広さ/階数 | 31.3m²/9.46坪/ 1F | |
| 保証金・敷金 | 4ヶ月 | |
| 造作価格 | ||
| 物件NO. | 11513130610 | |
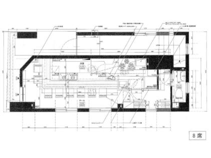
芝公園 3分 三田 9分 1階 路面 和食 居抜き 物件 不動産 テナント 重飲食可 造作無償芝公園エリアの物件をご紹介いたします。駅から徒歩3分にある1階路面の物件です。現況居酒屋居抜きでの引渡しとなります。物件内の厨房機器、客席等は撤去となりますので、自由なレイアウトを組むことが可能です。重飲食可。業態制限なし。造作無償。お問合せお待ちしております。 |
||
| 情報登録日 | 2026年03月16日 |
|---|---|
| 次回更新予定日 | 2026年03月22日 |
■こんな物件もあります!(条件に近い物件)
■こんな探し方もあります!
■このエリアの資金調達サポート企業
> 高橋会計事務所









