この物件は会員専用です
西新宿五丁目駅 5分
スケルトン
| 住所 | 新宿区西新宿4丁目 | |
|---|---|---|
| 沿線・駅 |
都営大江戸線/西新宿五丁目駅
都営大江戸線/都庁前駅 |
5分
10分 |
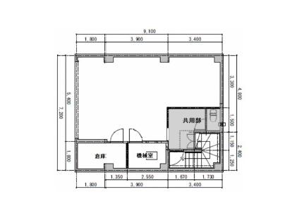
| 賃料(坪単価) | 330,000円(@20,874円) | |
| 広さ/階数 | 52.26m²/15.80坪/ B1F | |
| 保証金・敷金 | 5ヶ月 | |
| 造作価格 | ||
| 物件NO. | 11513130614 | |
西新宿五丁目 地下1階 スケルトン 飲食不可 その他 店舗 物件西新宿五丁目駅より徒歩5分、地下1階店舗物件のご紹介です。現況スケルトンでの引き渡しとなります。飲食不可。その他業態もご相談ください!お問い合わせお待ちしております。 |
||
| 情報登録日 | 2026年03月16日 |
|---|---|
| 次回更新予定日 | 2026年03月22日 |
■こんな物件もあります!(条件に近い物件)
■こんな探し方もあります!
■このエリアの資金調達サポート企業
> 高橋会計事務所









