この物件は会員専用です
外苑前駅 2分
その他居抜き
| 住所 | 港区北青山2丁目 | |
|---|---|---|
| 沿線・駅 | 東京メトロ銀座線/外苑前駅 | 2分 |
| 賃料(坪単価) | 864,061円(@40,689円) | |
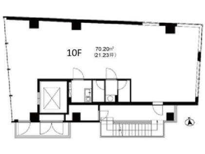
| 広さ/階数 | 70.2m²/21.23坪/ 10F | |
| 保証金・敷金 | 10ヶ月 | |
| 造作価格 | ||
| 物件NO. | 11513130627 | |
外苑前 2分 10階 スタジアム通り 事務所仕様 飲食不可 サービス業態外苑前駅徒歩2分、スタジアム通り沿いの店舗物件出ました!2022年11月竣工の築浅物件となります。事務所仕様でのお引渡しになりまして、飲食店での使用は不可となりますので、各種サービス業態にいかがでしょうか?お問い合わせお待ちしております。 |
||
| 情報登録日 | 2026年04月10日 |
|---|---|
| 次回更新予定日 | 2026年05月06日 |
■こんな物件もあります!(条件に近い物件)
■こんな探し方もあります!
■このエリアの資金調達サポート企業
> 高橋会計事務所









