この物件は会員専用です
学芸大学駅 4分
スケルトン
| 住所 | 目黒区鷹番3丁目 | |
|---|---|---|
| 沿線・駅 |
東急東横線/学芸大学駅
東急東横線/祐天寺駅 |
4分
17分 |
| 賃料(坪単価) | 250,000円(@20,869円) | |
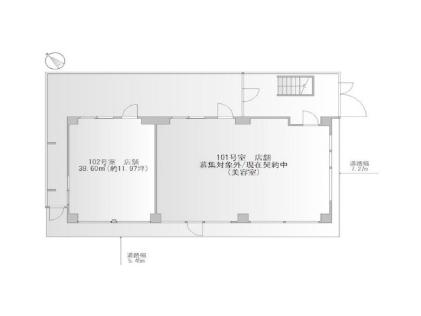
| 広さ/階数 | 39.6m²/11.97坪/ 1F | |
| 保証金・敷金 | 2,000,000円 | |
| 造作価格 | ||
| 物件NO. | 11513130826 | |
学芸大学 1階 スケルトン 碑文谷公園通り 飲食 物販 サービス 店舗学芸大学駅より徒歩4分、碑文谷公園通り沿いから1階店舗物件のご紹介です。現況スケルトンでの引渡しとなります。店内調理がある業態は基本不可ですが物販、サービス店舗などお気軽にご相談ください!お問い合わせお待ちしております。 |
||
| 情報登録日 | 2026年04月07日 |
|---|---|
| 次回更新予定日 | 2026年05月21日 |
■こんな物件もあります!(条件に近い物件)
■こんな探し方もあります!
■このエリアの資金調達サポート企業
> 高橋会計事務所









