この物件は会員専用です
西新宿駅 1分
その他居抜き
| 住所 | 新宿区西新宿8丁目 | |
|---|---|---|
| 沿線・駅 | 東京メトロ丸ノ内線/西新宿駅 | 1分 |
| 賃料(坪単価) | 286,000円(@18,909円) | |
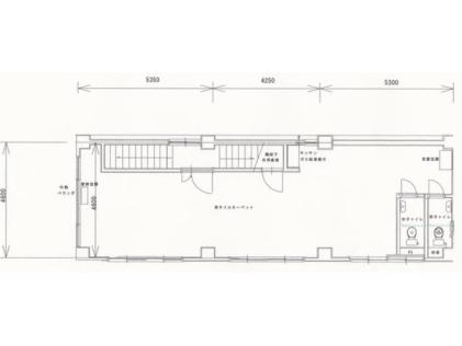
| 広さ/階数 | 50m²/15.12坪/ 2F | |
| 保証金・敷金 | 3ヶ月 | |
| 造作価格 | ||
| 物件NO. | 11513130880 | |
西新宿 2階 事務所仕様 青梅街道 飲食不可 店舗 物件西新宿駅より徒歩1分、青梅街道沿いの2階店舗物件のご紹介です。現況事務所仕様での引渡しとなります。飲食不可ですが、物販やサービス店舗などにいかがでしょうか?お問い合わせお待ちしております。 |
||
| 情報登録日 | 2026年04月02日 |
|---|---|
| 次回更新予定日 | 2026年05月28日 |
■こんな物件もあります!(条件に近い物件)
■こんな探し方もあります!
■このエリアの資金調達サポート企業
> 高橋会計事務所









