この物件は会員専用です
代々木駅 1分
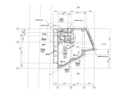
スケルトン
| 住所 | 渋谷区千駄ヶ谷5丁目 | |
|---|---|---|
| 沿線・駅 | JR山手線/代々木駅 | 1分 |
| 賃料(坪単価) | 1,430,000円(@42,711円) | |
| 広さ/階数 | 110.68m²/33.48坪/ 4F | |
| 保証金・敷金 | 12ヶ月 | |
| 造作価格 | ||
| 物件NO. | 11513131026 | |
代々木 1分 4階 駅前 新築 スケルトン 重飲食可 不動産 物件 店舗 テナント 物販 サービス代々木駅徒歩1分の立地から、新築スケルトン物件のご紹介です。2026年11月竣工予定の建物になりまして、重飲食含め各種業態相談可。駅目の前の立地ですので、需要見込めます。お問い合わせお待ちしております。 |
||
| 情報登録日 | 2026年04月08日 |
|---|---|
| 次回更新予定日 | 2026年05月29日 |
■こんな物件もあります!(条件に近い物件)
■こんな探し方もあります!
■このエリアの資金調達サポート企業
> 高橋会計事務所









