この物件は会員専用です
外苑前駅 4分
その他居抜き
| 住所 | 港区南青山3丁目 | |
|---|---|---|
| 沿線・駅 |
東京メトロ銀座線/外苑前駅
東京メトロ千代田線/表参道駅 |
4分
8分 |
| 賃料(坪単価) | 1,045,000円(@33,293円) | |
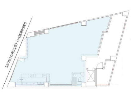
| 広さ/階数 | 103.76m²/31.38坪/ 1F | |
| 保証金・敷金 | 8ヶ月 | |
| 造作価格 | ||
| 物件NO. | 11513131309 | |
外苑前 1階 路面店 ギャラリー居抜き 造作 譲渡 不動産外苑前駅徒歩4分の立地から、1階路面ギャラリー居抜き物件のご紹介です。内装一部残地になりまして、飲食・美容室での使用は不可となります。各種サービス業態にいかがでしょうか?お問い合わせお待ちしております。 |
||
| 情報登録日 | 2026年04月23日 |
|---|---|
| 次回更新予定日 | 2026年04月29日 |
■こんな物件もあります!(条件に近い物件)
■こんな探し方もあります!
■このエリアの資金調達サポート企業
> 高橋会計事務所









