この物件は会員専用です
目黒駅 4分
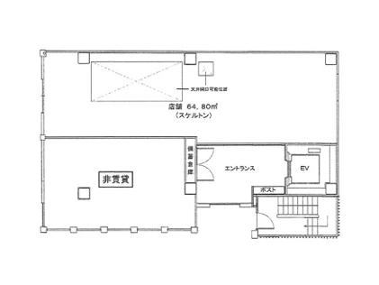
スケルトン
| 住所 | 品川区上大崎3丁目 | |
|---|---|---|
| 沿線・駅 |
東京メトロ南北線/目黒駅
都営三田線/目黒駅 JR山手線/目黒駅 |
4分
4分 4分 |
| 賃料(坪単価) | 1,078,000円(@54,994円) | |
| 広さ/階数 | 64.8m²/19.60坪/ 1F | |
| 保証金・敷金 | 3ヶ月 | |
| 造作価格 | ||
| 物件NO. | 11513131401 | |
目黒 徒歩4分 1階 新築スケルトン サービス 物販 サロン目黒エリアの物件ご紹介いたします。駅から徒歩4分にある1階の物件です。新築スケルトンでの引き渡しとなります。スケルトンのため自由なレイアウトを組むことが可能となります。お問い合わせお待ちしております。 |
||
| 情報登録日 | 2026年04月28日 |
|---|---|
| 次回更新予定日 | 2026年05月04日 |
■こんな物件もあります!(条件に近い物件)
■こんな探し方もあります!
■このエリアの資金調達サポート企業
> 高橋会計事務所









