この物件は会員専用です
神楽坂駅 7分
スケルトン
| 住所 | 新宿区東五軒町 | |
|---|---|---|
| 沿線・駅 |
東京メトロ東西線/神楽坂駅
東京メトロ有楽町線/江戸川橋駅 |
7分
8分 |
| 賃料(坪単価) | 1,760,000円(@28,324円) | |
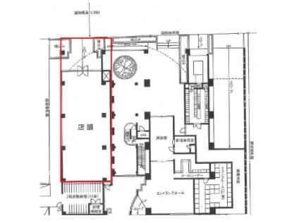
| 広さ/階数 | 205.41m²/62.13坪/ 1F | |
| 保証金・敷金 | 6ヶ月 | |
| 造作価格 | ||
| 物件NO. | 11513179201 | |
神楽坂 1階 スケルトン 飲食可 クリニック サービス 店舗神楽坂駅より徒歩7分、五軒町エリアから1階店舗物件のご紹介です。現況スケルトンでの引き渡しとなります。飲食可。住民の層も高い水準の方が多いため、近隣には名だたる高級店も軒を連ねる立地です。まずはお気軽にお問い合わせください。 |
||
| 情報登録日 | 2026年03月16日 |
|---|---|
| 次回更新予定日 | 2026年05月06日 |
■こんな物件もあります!(条件に近い物件)
■こんな探し方もあります!
■このエリアの資金調達サポート企業
> 高橋会計事務所









