この物件は会員専用です
下高井戸駅 1分
その他居抜き
| 住所 | 世田谷区赤堤4丁目 | |
|---|---|---|
| 沿線・駅 |
京王線/下高井戸駅
東急世田谷線/下高井戸駅 |
1分
1分 |
| 賃料(坪単価) | 253,000円(@18,146円) | |
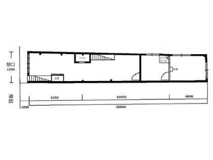
| 広さ/階数 | 46.09m²/13.94坪/ 2F | |
| 保証金・敷金 | 6ヶ月 | |
| 造作価格 | ||
| 物件NO. | 11513127904 | |
下高井戸 日大通り 2階 サービス 物販 店舗 事務所下高井戸エリア物件でました!駅徒歩1分の日大通り沿い駅近好立地の店舗物件です。地元住民の生活動線上に位置しております。まずはお問合せお待ちしております。 |
||
| 情報登録日 | 2026年01月26日 |
|---|---|
| 次回更新予定日 | 2026年05月17日 |
■こんな物件もあります!(条件に近い物件)
■こんな探し方もあります!
■このエリアの資金調達サポート企業
> 高橋会計事務所









