この物件は会員専用です
銀座駅 2分
スケルトン
| 住所 | 中央区銀座6丁目 | |
|---|---|---|
| 沿線・駅 |
東京メトロ日比谷線/銀座駅
東京メトロ銀座線/銀座駅 東京メトロ丸ノ内線/銀座駅 |
2分
2分 2分 |
| 賃料(坪単価) | 2,503,600円(@43,997円) | |
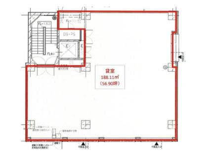
| 広さ/階数 | 188.11m²/56.90坪/ 2F | |
| 保証金・敷金 | 12ヶ月 | |
| 造作価格 | ||
| 物件NO. | 11513128998 | |
銀座 徒歩2分 2階 スケルトン サービス サロン エステ銀座エリアの物件ご紹介いたします。駅から徒歩2分にある2階の物件です。現況スケルトンでの引き渡しとなります。大箱物件となりますので、増店や移転の方におすすめとなります。お問い合わせお待ちしております。 |
||
| 情報登録日 | 2026年04月13日 |
|---|---|
| 次回更新予定日 | 2026年05月19日 |
■こんな物件もあります!(条件に近い物件)
■こんな探し方もあります!
■このエリアの資金調達サポート企業
> 高橋会計事務所









